


Flex box
4 455 м2
Стоимость
614 790 000
С учетом НДС
здание
2
Общая площадь
4455 м2
Производственно складская пл
3450 м2
Торгово-офисная пл
310 м2
Рабочая высота
12.5 м
Нагрузка на пол
8 т/м2
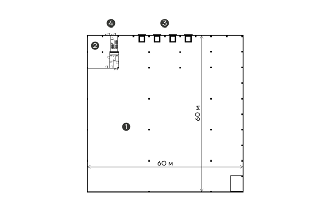
1 Производственно-складское помещение
2 Офис — 1 и 2 этаж
3 Погрузочные доки
4 Индивидуальные входы


