


ФЛЕКС БОКС
4 459 м2
Стоимость
615 342 000
С учетом НДС
здание
3
Общая площадь
4459 м2
Производственно складская пл
3454 м2
Торгово-офисная пл
310 м2
Рабочая высота
12.5 м
Нагрузка на пол
8 т/м2
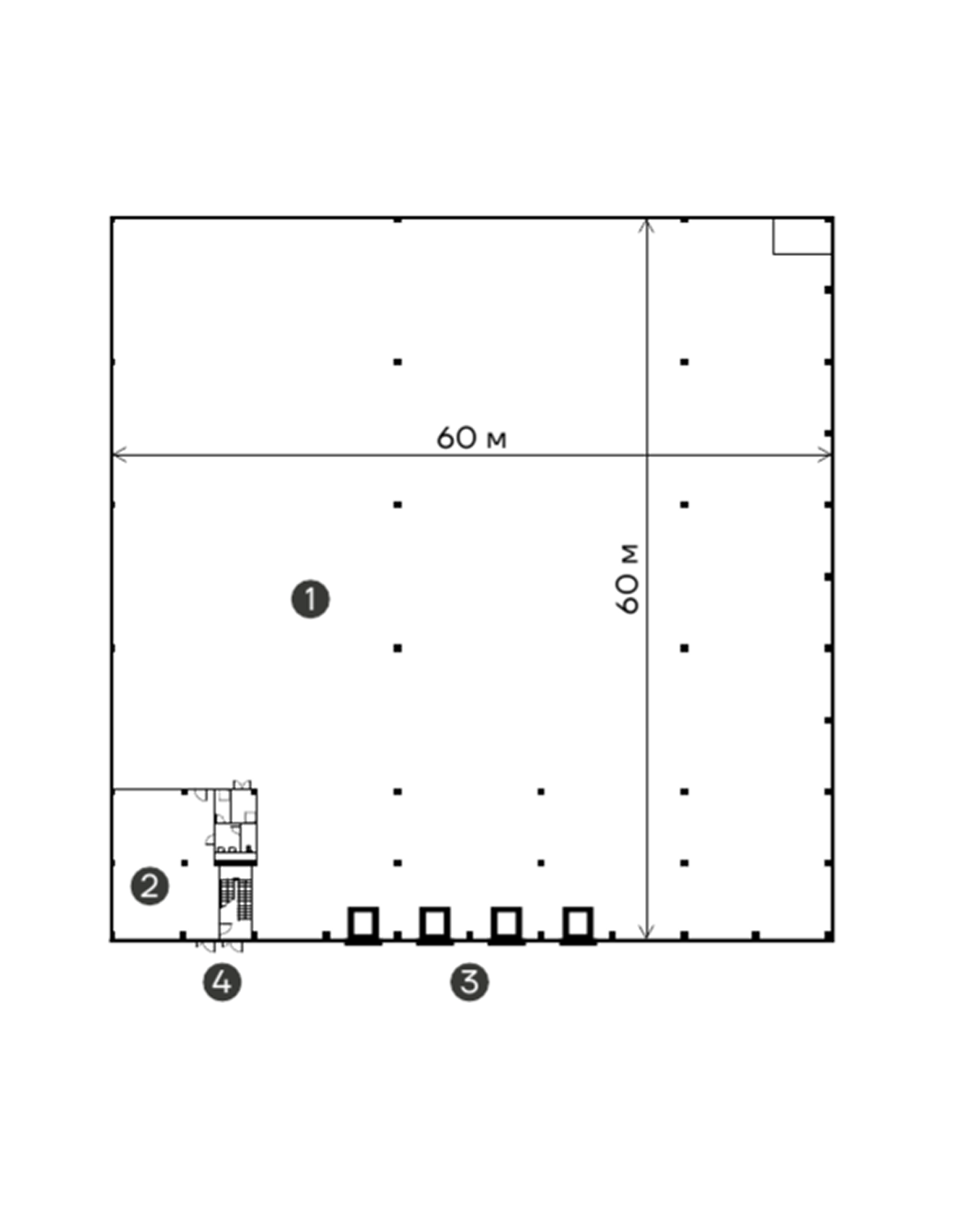
1 Производственно-складское помещение
2 Офис — 1 и 2 этаж
3 Погрузочные доки
4 Индивидуальный вход


