


Лайт Индастриал
3 052 м2
Стоимость
519 328 320
С учетом НДС
лот
9
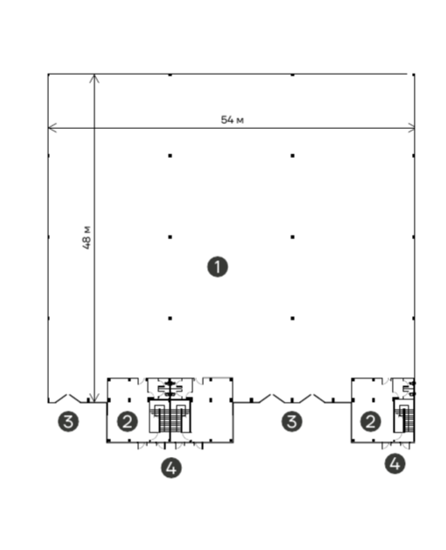
Общая площадь
3052 м2
Производственно складская пл
2521 м2
Торгово-офисная пл
446 м2
Рабочая высота
8 м
Нагрузка на пол
5 т/м2
ЗДАНИЕ К
1 Производственно-складское помещение
2 Офис – 1 и 2 этаж
3 Погрузочные ворота
4 Индивидуальные входы


