


Light industrial
3 100 м2
Стоимость
438 588 000
С учетом НДС
лот
25
Общая площадь
3100 м2
Производственно складская пл
2608 м2
Торгово-офисная пл
494 м2
Рабочая высота
8 м
Нагрузка на пол
5 т/м2
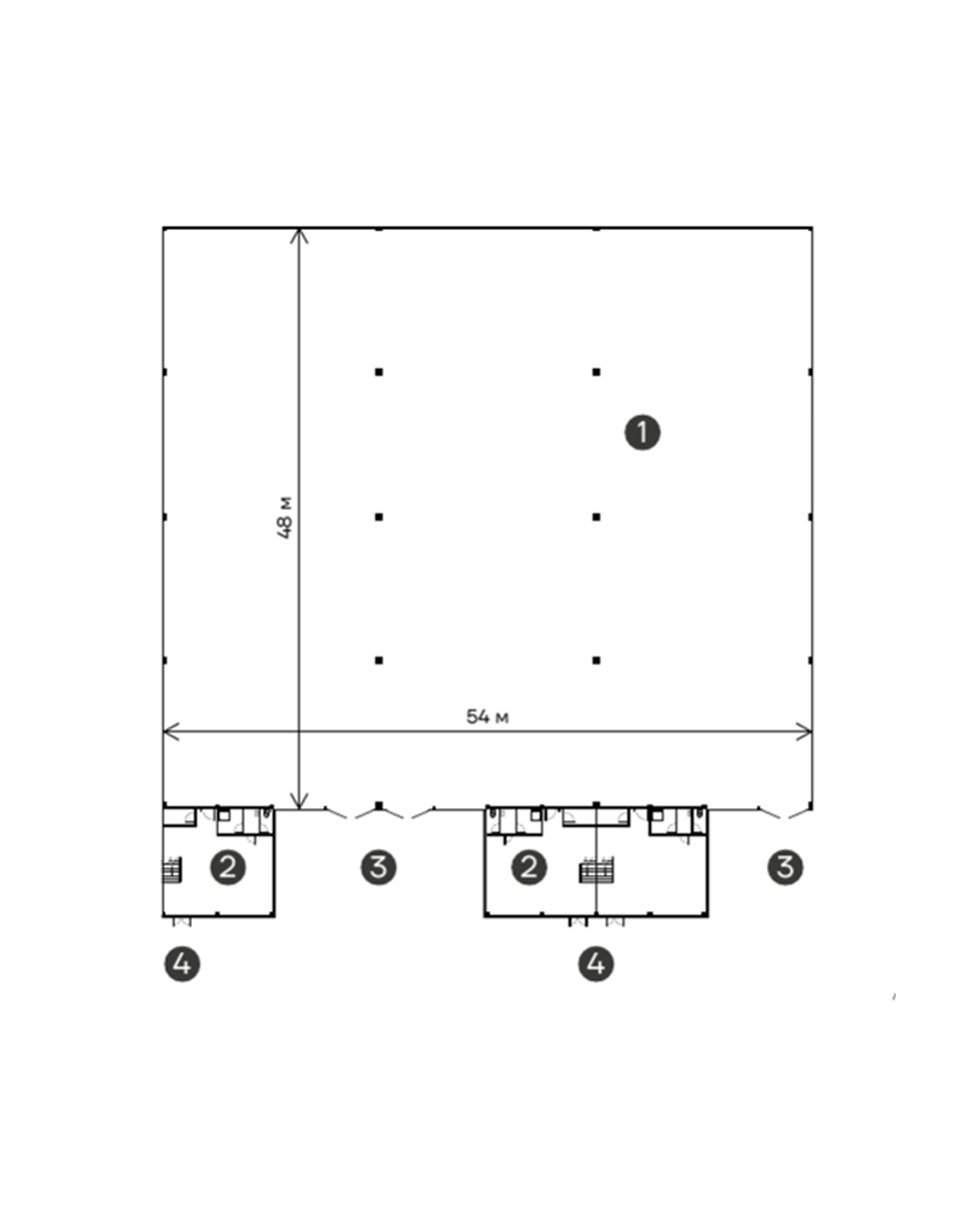
ЗДАНИЕ L
1 Производственно-складское помещение
2 Офис – 1 и 2 этаж
3 Погрузочные ворота
4 Индивидуальные входы


