


Light industrial
1 203 м2
Стоимость
174 819 960
С учетом НДС
лот
4
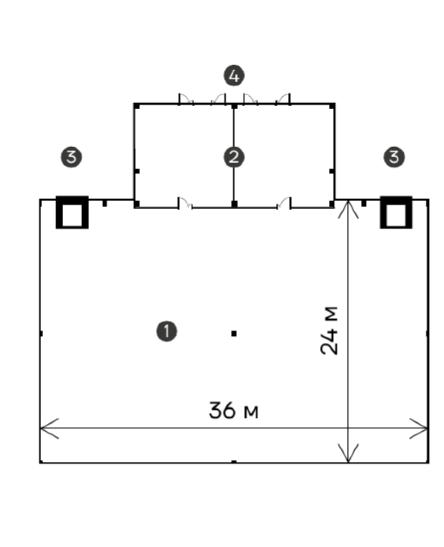
Общая площадь
1203 м2
Производственно складская пл
825 м2
Торгово-офисная пл
328 м2
Рабочая высота
8 м
Нагрузка на пол
5 т/м2
1 Производственно-складское помещение
2 Офис – 1 и 2 этаж
3 Погрузочные ворота
4 Индивидуальные входы


