


Лайт Индастриал
1 804 м2
Стоимость
262 157 280
С учетом НДС
лот
8
Общая площадь
1804 м2
Производственно складская пл
1312 м2
Торгово-офисная пл
492 м2
Рабочая высота
8 м
Нагрузка на пол
5 т/м2
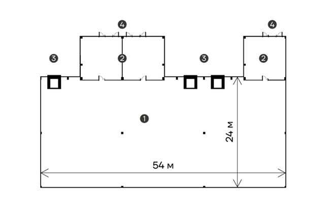
1 Производственно-складское помещение
2 Офис – 1 и 2 этаж
3 Погрузочные ворота
4 Индивидуальные входы


